Чердачная лестница LRF Termo Extrem 66 mm в Орле
Уважаемые покупатели!
В связи с участившимися случаями подделок продукции нашего производства, вынуждены сообщить, что гарантировать качество данного изделия и осуществлять постпродажное (гарантийное) обслуживание мы можем только при наличии данной пометки в номенклатуре люка, в КП, в счетах, в накладных, в счет фактурах, на сайтах-партнерах. Бренд "лючки.рф" является зарегистрированным товарным знаком и защищен законодательно.
Если Вам предлагается идентичная номенклатура, но без приписки "лючки.рф ®" это означает, что продукт изготовлен не на нашем заводе со всеми вытекающими последствиями (провисание, ржавение, несоблюдение диагоналей, несоблюдение зазоров, отсутствие гарантийных обязательств и многое другое). Зачастую такую продукцию реализуют фирмы-однодневки.










| Товар |
|---|
| Чердачная лестница LRF Termo Extrem 66 mm 600*1200*2800 |
| Чердачная лестница LRF Termo Extrem 66 mm 700*1200*2800 |
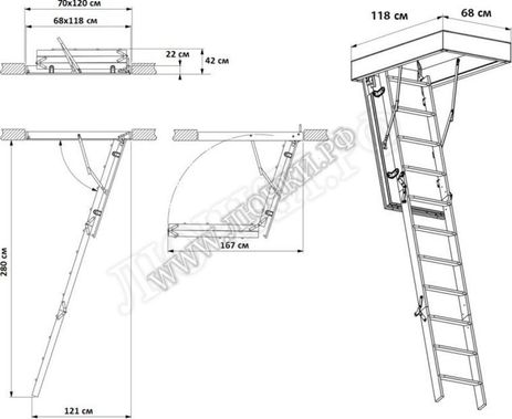
| Посадочные размеры | Высота потолка | Габаритные размеры | Прочие размеры | Масса | Механизм запирания | |||
|---|---|---|---|---|---|---|---|---|
| Ширина (мм) | Длина (мм) | От (мм) | До (мм) | Ширина (мм) | Длина (мм) | Минимальное расстояние до стены (мм) | (кг) | |
| 600 | 1200 | 2320 | 2800 | 600 | 1200 | 1030 | 35 | Замок под 4х-гранный ключ |
| 700 | 1200 | 2320 | 2800 | 700 | 1200 | 1230 | 35 | Замок под 4х-гранный ключ |
| Посадочные размеры | Высота потолка | Габаритные размеры | Прочие размеры | Масса | Механизм запирания | |||
|---|---|---|---|---|---|---|---|---|
| Ширина (мм) | Длина (мм) | От (мм) | До (мм) | Ширина (мм) | Длина (мм) | Минимальное расстояние до стены (мм) | (кг) | |
| 600 | 1200 | 2320 | 2800 | 600 | 1200 | 1030 | 35 | Замок под 4х-гранный ключ |
| 700 | 1200 | 2320 | 2800 | 700 | 1200 | 1230 | 35 | Замок под 4х-гранный ключ |
| Цена | |
|---|---|
| Розничная цена | Цена со скидкой 10% |
| 27 515 | 24 764 |
| 30 237 | 27 213 |
Общие параметры
Металлический поручень - 2шт
Монтажный набор в комплекте
До: 2800 мм, 3300 мм
Погрешность при производстве может составлять +- 2 мм.
Производитель на свое усмотрение и без дополнительных уведомлений может менять комплектацию, внешний вид и технические характеристики модели.
Услуги замера и монтажа временно не предоставляются
Приносим извинения за возможные неудобства
Стоимость работ по монтажу
| Стоимость работ по монтажу люков | ||||
|---|---|---|---|---|
| Модель | Стоимость работ | Стоимость материала для монтажа | ||
| Напольный | ||||
| Съемный | от 8000 | от 2000 | ||
| На петле | ||||
| Настенный | ||||
| Металлический сантехнический размеры от 200 до 500мм | от 500 | от 200 | ||
| Металлический сантехнический размеры от 500 до 1000мм | от 1000 | от 500 | ||
| Под плитку размеры от 200 до 500 мм | от 2500 | от 500 | ||
| Под плитку размеры от 500 до 1000 мм | от 3500 | от 1000 | ||
| Под покраску размеры от 200 до 500 мм | от 2500 | от 500 | ||
| Под покраску размеры от 500 до 1000 мм | от 3500 | от 1000 | ||
| Потолочный | ||||
| Под покраску от 200 до 500 мм | от 2500 | от 500 | ||
| Под покраску от 500 до 1000 мм | от 3000 | от 1000 | ||
| Стоимость работ по установке чердачных лестниц | ||||
| Тип работ | Стоимость работ | |||
| Деревянные чердачные лестницы, установка в готовый проем | 5000 ₽ | |||
| Металлические чердачные лестницы, установка в готовый проем | 7500 ₽ | |||
| Подготовка проема под установку лестнице (в зависимости от сложности работ, кроме бетонных проемов) | от 2000 до 5000 ₽ | |||
| Подготовка проема в бетонном перекрытии | от 5000 | |||
| Стоимость услуг по установке окон-люков | ||||
| Тип работ | Стоимость работ | |||
| Установка окон-люков в готовый проем без подведения кровельного покрытия | 5000 ₽ | |||
| Установка окон-люков в готовый проем без подведения кровельного покрытия с переносом стропильной системы | 8000 ₽ | |||
| Установка окон-люков в готовый кровельный пирог (Битумная, натуральная, металлочерепица) | 10000 ₽ | |||
| Установка окон-люков в готовый кровельный пирог с переносом стропильной системы (Битумная, натуральная, металлочерепица) | 13000 ₽ | |||
| Установка окон-люков в фальцевую кровлю (Клик фальц, двойной стоящий фальц, оцинковка и т.п.) | от 18000 ₽ | |||
В стоимость работ не входит:
- Укладка плитки;
- Шпатлевка;
- Подготовка проема;
- Укрепление проема;
- Утепление люка.
ВНИМАНИЕ! Дополнение по установке и замеру чердачных лестниц: Выезд на замер осуществляется платно, до первого малого бетонного кольца 1 500 ₽, от малого и далее по Московской области 2 000 ₽.
* Стоимость монтажа и установочных работ может отличаться от прайса. Подробную информацию уточняйте у менеджеров магазина.
* Расходный материал при установке чердачных лестниц в стоимость монтажа не входит и расчитывается индивидуально.










+7 (977) 090-10-90





















































































































































































